050-3159-8463

受付時間 10:00〜18:00( 平日 )

登録店舗物件数6419

居抜き物件数 4393

譲渡物件数000

登録店舗物件数6419

居抜き物件数 4393

譲渡物件数000

スケルトン

千葉県千葉市中央区富士見2-5-3JR千葉駅 徒歩4分の物件情報

B342-5071

新着情報

タグ

最寄り駅

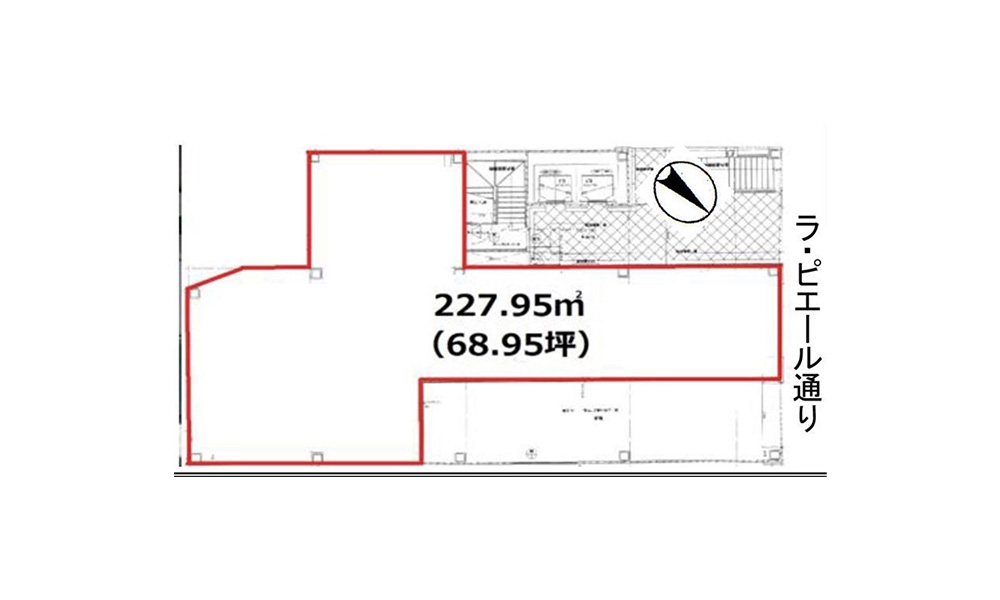
JR千葉駅 徒歩4分

所在地 千葉市中央区
賃料/坪単価 1,800,000円 / 26,105円
区画面積/坪数 227.93㎡ / 68.95坪
前業態 コンビニ
備考

千葉駅徒歩4分!ラ・ピエール通り沿いの1階です。

情報掲載日
2023/11/27
情報更新日
2023/11/27

※状況によりご案内できない場合がございます。

詳細な物件情報・物件見学はお気軽にお問い合わせください

お問い合わせ

物件の詳細情報・見学希望、
お気軽にお問合せください

物件サーチ「B342-5071」の件とお伝えください

株式会社テンポスドットコム
受付時間:平日10:00-18:00

050-3159-8463

当サイトで、ご希望の物件が見つからない場合
お気軽にお問合せください。

株式会社テンポスドットコム
受付時間:平日10:00-18:00

050-3159-8463

\最新の物件情報をメールで配信中!/

新着物件情報を受け取る